企業理念
Corporate philosophy

人にやさしい住まいづくり
「家を建ててからが本当のお付き合いが始まる」
お客様との出会いを大切に、お客様の「暮らし」を
まず第一に考え、お客様と同じ気持ちで夢を
形にしていく事に日々精進しております。
Corporate philosophy

人にやさしい住まいづくり
「家を建ててからが本当のお付き合いが始まる」
お客様との出会いを大切に、お客様の「暮らし」を
まず第一に考え、お客様と同じ気持ちで夢を
形にしていく事に日々精進しております。

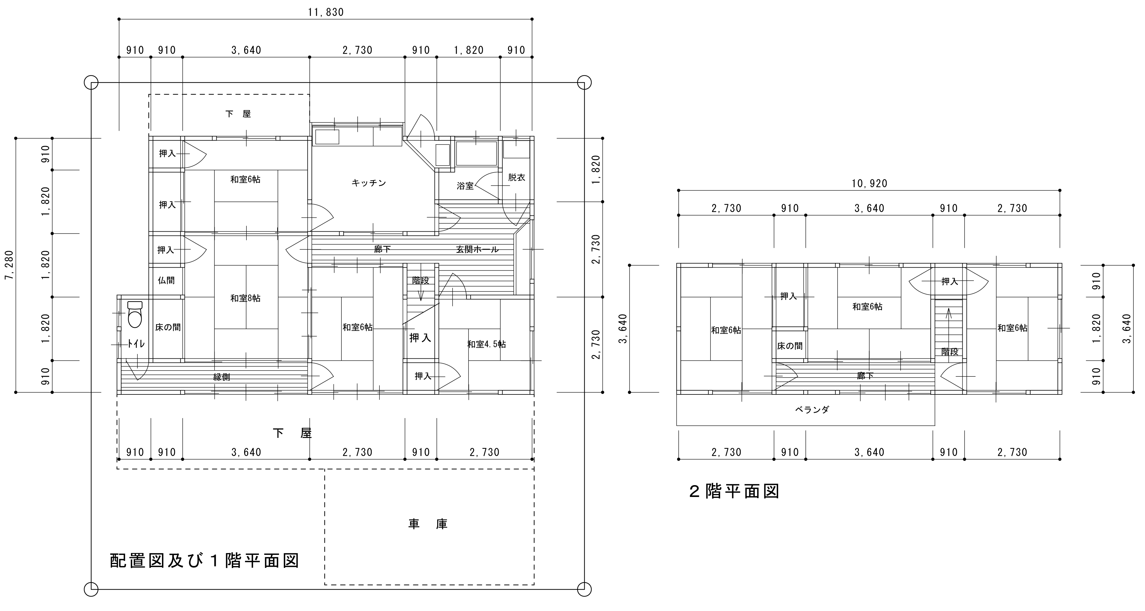
長野市松代 【グリーンパーク松代田町 分譲開始!!】
~全5区画 ’家庭菜園を楽しむ。ゆとりある分譲地が新たに誕生’~
・価格帯 933万円~984万円
・面積 215.02㎡ ( 65.04 坪 )~365.95㎡ ( 110.69 坪 )





画像協力:君島弘章建築設計事務所様


Copyright©2025埴科建設株式会社